اطلاعات پروژه
نام: ویلای شهرزاد
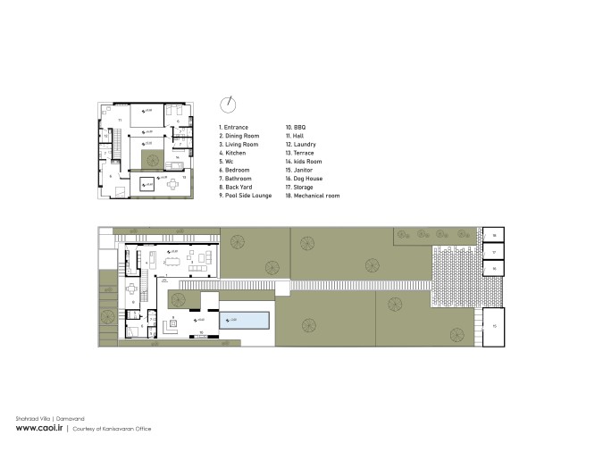
آدرس: دماوند، روستای سیدآباد
دفتر معماری: دفتر معماری کانی سواران
معمار: محمد کانی سواران
تیم طراحی: گل نساء متحد، فاطمه احمدیه، عاطفه پرنده، نسترن نصری
تاریخ: ۱۴۰۱-۱۴۰۳
مساحت زمین: ۱۶۵۰ مترمربع
مساحت زیربنا: ۴۷۵ مترمربع
نوع: مسکونی
مهندس سازه: حمید عباس پناه
تاسیسات مکانیکی: آقای خدایی
تاسیسات الکتریکی: آقای امان اللهی
نورپردازی: شرکت نورپردازی فاد
مدیر اجرایی: دفتر معماری کانی سواران
تیم اجرایی: بنفشه ساغری
گرافیست: دفتر معماری کانی سواران
مصالح: پلاستر سیمان،چوب،سنگ نیریز
کارفرما: شهرزاد ورزیده کار
عکاس: محمدحسن اتفاق، علی زنجانی
توضیحات
پروژه ها با توجه به ویژگی ها عینی و ذاتی خود معرفی و شناخته می شوند. بدون شک این ویژگی ها بیشتر در زمان بهره برداری دیده و لمس می شوند؛ این ویژگی ها محصول دغدغه مندی هایی بوده است که تیم طراحی برای رسیدن به یک پاسخ درست بر پایه کیفیت فضایی به آن دست یافته است. پروژه در زمینی به مساحت ۱۶۵۰ مترمربع با موقعیتی شرقی- غربی در دشت سیدآباد، منطقه دماوند واقع شده است. ایده شکلگیری این ویلا از تقابل میان الزامات سایت و میل به خلق فضایی سرشار از نور و زندگی آغاز شد؛ تعریف نور در این پروژه در واقع در مورد مشخصه های صرفا فیزیکی و اصطلاحاً استانداردهای اولیه کاربردی و الزامی آن نیست، بلکه در مورد چیزی فراتر از آن صحبت می شود. به عبارتی به دنبال بیان و ارائه یک کیفیتی بی نام از آن هستیم. نور برای یک فضا از نگاه کیفی یعنی طلوع و غروب، یعنی زمان و زمان به مثابه کمیتی برای تعریف گذر است و همه این ها زیر سایه و نیم سایه های بنا و طبیعت به تفسیری به زندگی تعبیر می شوند.
با الهام از الگوی حیاط مرکزی تلاش کردیم نور را به درون دعوت کنیم. این حیاط، تنها عنصری برای روشنایی نیست؛ بلکه به هستهای برای نظمبخشیدن به ترکیب فضایی پروژه بدل شده و پیوندی زنده میان درون و بیرون در تراز های مختلف ارتفاعی برقرار کرده است. حضور فضای سبز در قلب بنا، نهتنها به تهویه طبیعی و بهره مندی از نور طبیعی در تمام بخش های خانه در فصول مختلف کمک میکند، بلکه فرصتی برای تنوع در تجربه فضایی در هر گوشه خانه را فراهم میآورد. در چهار گوشه این بنا، پنجرههایی با ارتفاع حداکثری تا زیر سقف جانمایی شدهاند؛ گشایشهایی برای انتقال نور طبیعی و همچنین درک طلوع و غروب خورشید در چهار فصل. جهت پنجره های ثابت و باز شو های آن در نمای بنا بر اساس هماهنگی با جهت بادهای غالب در منطقه هماهنگ شده است تا در کنار بهره مندی از زیبایی های محیط پیرامونی و همچنین ایجاد مسیری برای تهویه طبیعی، محافظت در برابرمخاطرات مسائل اقلیمی با توجه به شدت باد در منطقه را نیز تأمین کنند.
در اینجا اگر چه نور و رساندن آن به فضاهای مرکزی حیاتی و الزامی بود ولی زمانی که الزام فراتر از رفع نیاز های اولیه ایفای نقش کند می تواند موضوع را به تعریف جدیدی از جایگاه خودش برساند. نور در اینجا جریان کامل زندگی بود و زندگی کاملاً زیر نور. نور برای عبور از سقف ها ی صلب نیازمند بازشوهایی بود که بتواند احساس گذر و نمایش زمان را فراهم کند و با توجه به محل قرارگیری بازشوها در سه فضای باز، نیمه باز و بسته این امکان را میسر کرد که سه کیفیت زمانی و فضایی متفاوتی را به نمایش بگذارد و این سه کیفیت را می توان در یک نقطه و یا به عبارتی در یک سکانس در محیط تجربه کرد.
حرکت اولیه خطوط و فرم پیرامونی ویلا در نگاه نخست، شبیه به ساختارهای کلاسیک و متقارن است؛ اما در ترکیب بندی فضایی و پلان با نگاهی معاصر گونه این تقارن به تعادلی سیال در ترکیب کلی حجمها تبدیل شده است. فرم مربع شکل بنا در میانه سایت قرار دارد و محور میانی آن با حیاط مرکزی، فضایی روایی و پر تحرک خلق میکند؛ جایی که ساکنین با هر حرکت، کیفیتی تازه از محیط را تجربه میکنند. بنا در دوعنوان بسته و باز در رفت و آمد است و این تعریف نامعین در زوایای داخلی و بیرونی کاملا قابل مشاهده است. زمانی که از بیرون به درون بنا می نگریم بیشتر شبیه یک تک بنای محافظت شده و یا به عبارتی به بنایی که با نگاهی محافظه کارانه ایجاد شده است مواجه می شویم و در فرم و خطوط پیرامونی طبقه اول به نوعی با یک تناسبی نزدیک به تناسبات کلاسیک مواجه می شویم ولی با هر قدم که به بنا نزدیک می شویم با عدم قطعیتی روبرو می شویم که امکان باز تعریف مجدد از بنا را به ما می دهد و این باز تعریف زمانی به انسجام می رسد که تجربه فضایی در سه فضای باز، بسته و نیمه باز بنا تکمیل شود.
تلاقی فضاهای افقی که در لایه لایه های مختلف پلان شکل گرفته اند توانسته اند بدون هیچ واسطه ایی تصویر خود را در مقطع و همچنین در تعریف ارتباط های عمودی فضا نشان دهند. این تلاقی ها در پلان و مقطع فضاهای جدید و پیش بینی ناپذیری رو برای ساکنین ارائه می دهند. نقطه اوج این اتفاق در عبور از لایه لایه های شکل گرفته در طبقه همکف و فضاهای پیرامونی حیاط مرکزی در طبقه اول است که نتیجه این ترکیب بندی ایجاد فضاهایی با ترکیب بندی ها و پرسپکتیوهای متفاوت است. باتوجه به موقیت پروژه و به تبع آن بنای اصلی این گونه به نظر می رسد که بنا در خلوت خودش تلاش دارد تا ساکنین را به سکوت سرشار از حس زندگی وبه دور از شلوغی های روز مره دعوت کند.
این بنا راوی زندگی ست.
English
Please click on the link below to view the project's information in English language.
Click Here!