Email: caoi.ir@post.com Telegram ID: @caoiran
Slide 1

IN THIS PART, YOU WILL ACCESS TO THE PROJECTS DESIGNED AND CONSTRUCTED BY IRANIAN ARCHITECTS INSIDE AND OUTSIDE OF IRAN.
TO KNOW ABOUT HOW YOU COULD SUBMIT YOUR PROJECT, PLEASE CONTACT US!

Shadow

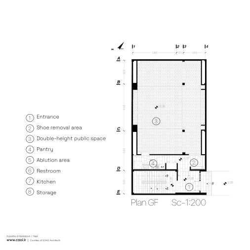
Hussainia of Madarjoon

Read 600 times Last modified on Thursday, 11 December 2025 21:20