Description
Project Overview:
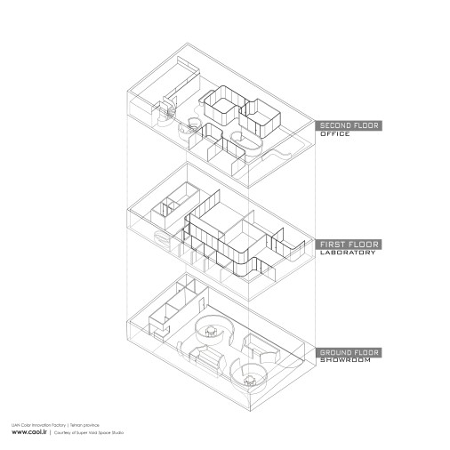
The LIAN Color Innovation Factory is a three-story industrial renovation that transforms a former factory into a space where architecture operates as a “discursive machine.” Rather than serving as a neutral container, the building actively shapes the bodies, perceptions, and emotions of workers and visitors over time. Covering approximately 1,000 square meters, it combines exhibition showrooms, laboratories, an academy, and offices, integrating production, education, display, and administration into a cohesive environment.
Design Concept:
At the core of the project is color—not merely as surface treatment, but as an architectural subject with qualities such as fluidity, permeability, and penetration. These qualities guide both the programmatic organization and spatial experience, creating an environment that engages users physically, perceptually, and emotionally. The brand’s signature orange is embedded throughout the space, reinforcing corporate identity while energizing and animating the architectural language.
Spaces and Experience:
- Showroom and Galleries: The ground-floor showroom is the first stage of the spatial narrative. Four interconnected galleries explore movement and perception: two primary spiral galleries guide circulation and immersion, while two smaller, subtly curved rectangular galleries offer perceptual pauses. Neutral gray walls provide a calm backdrop, allowing the orange identity to infiltrate the space and generate energy, playfulness, and engagement. The sequence of spaces mirrors the operational flow of painting processes, translating industrial rhythm into architectural experience.
- Laboratory and Academy: Transparent, minimalist spaces allow trainees to observe industrial operations in real time. Five sequential workstations are arranged along a curved strip and connected via sliding doors, creating continuity and enhancing experiential learning. Architecture mediates between learning and production, positioning users as active participants rather than passive observers.
- Office Spaces: The administrative floor enacts another layer of discursive interplay: circular volumes for the waiting area and management offices are penetrated by orange accents, while surrounding rectangular offices with slightly curved edges foster a balance between order and playful energy. Here, structure and inspiration coexist, encouraging both discipline and creativity.
Key Features:
Color as an architectural subject: Color actively informs spatial perception and experience, extending beyond aesthetics to influence movement and emotion.
Integration of brand identity: The corporate orange reinforces recognition and presence, linking identity to experience.
User-focused design: Spaces are crafted to positively impact mood, energy, and engagement.
Mediated learning and production: Laboratories and academy are interwoven, allowing observation, participation, and interaction within the industrial workflow.
Conclusion:
The LIAN Color Innovation Factory demonstrates how architecture can transcend functional requirements to become a medium of experience, identity, and emotion. By translating the qualities of color into spatial form and embedding the brand’s identity, the project creates a cohesive, dynamic, and engaging environment. It exemplifies how thoughtful design can simultaneously enhance operational efficiency, foster human well-being, and generate a meaningful architectural discourse.
Farsi
Please click on the Link below to read the information in Farsi Language.
Click Here!